Technical Articles

技术文章

当前位置:首页  >  技术文章

沼气脱硫净化塔湿法脱硫工艺
沼气脱硫净化塔湿法脱硫工艺

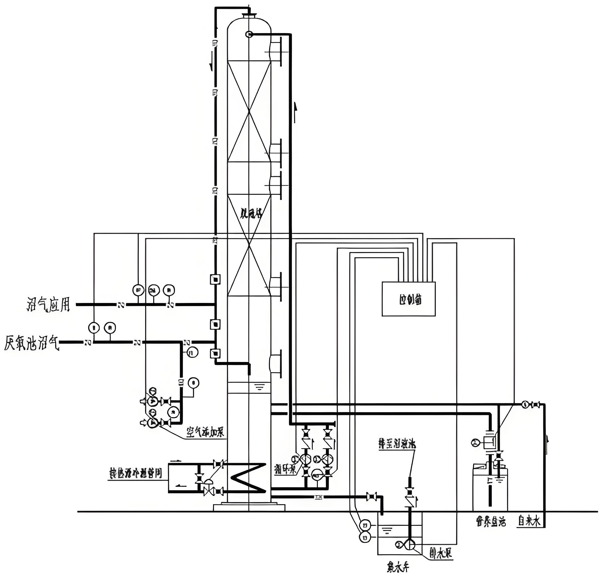
沼气湿法脱硫是大型沼气连续脱硫工艺,是用碱性吸收液在脱硫塔内逆流吸收H₂S,再通过氧化再生循环使用。一、工艺原理(湿式氧化法为主)以碱性溶液+催化剂为吸收剂,在脱硫塔内完成气液接触吸收,再经空气氧化再生,将H₂S转化为单质硫,吸收液循环使用。1.吸收反应(脱硫塔内)以Na₂CO₃/NaOH为吸收剂:H₂S+Na₂CO₃→NaHS+NaHCO₃H₂S+2NaOH→Na₂S+2H₂O以络合铁/有机胺/...

2026-04-04
查看详情
  • 槽式液体分布器用于填料塔进料段

    槽式液体分布器用于填料塔进料段,液体分布均匀,喷淋点密度大,压降低。槽盘式液体分布器的作用是把液体在填料顶部或某一高度上进行均匀的初始分布或再分布,用来提高传质、传热表面,改变相间接触,从而提高塔的效率。槽式液体分布器结构形式:1.主槽和分槽合为一体2.液体先进入主槽,由主槽水平流入各分槽,再由各分槽分布到填料表面3.主槽内设有防冲板;各分槽上部开溢流孔,下部开布液孔4.为防堵塞,主槽上方液体入口处设有过滤框槽式液体分布器通常是由分流構(又称主槽或一层槽)分布槽(又称副槽或二...

    20247-14
    查看详情
  • 一体化雨水提升泵站排水防涝工程

    一体化雨水提升泵站排水防涝工程排污泵采用自动搅拌装置,产生很强的搅拌力,将一体化泵站内的沉积物搅拌成悬浮物,吸入泵内排出,一次性完成了排水、清污、除淤,采用自动耦合装置,方便安装与维护。一体化提升泵站主要作用:①收集城市雨水、河道水、湖泊水,防止水体上升而造成内涝,然后把水输送到自来水厂、居民用水、农作物灌溉等市政积水。②收集市政工厂、居民生活直排的污水,通过污水泵站里的格栅、潜污泵进行搅匀处理,让管道不存在淤泥等堵塞物,提升水位加压输送到污水处理厂。一体化雨水提升泵站类型:...

    20247-10
    查看详情
  • 一体化泵站筒体采用缠绕玻璃钢GRP项目

    一体化泵站筒体采用缠绕玻璃钢GRP缠绕制作,FRP、GRP都是指玻璃钢材质。一体化泵站由压力传感器或者浮球反馈泵站的液位信息到控制系统,再由控制系统设定的运行参数调节水泵开关运行。当液位达到系统设定的开启水泵液位时,控制系统会控制水泵启动,这样污水便从泵站抽到市政污水管路出口;当污水抽送低于系统设定液位时,系统会控制水泵停运。一体化泵站适用范围:1、市政给水、排水;2、雨洪应急排水;3、城镇污水、雨水提升;4、下立交排水;5、铁路、公路排水;6、原水取水;7、建筑给水、排水城...

    20247-8
    查看详情
  • 生物滤塔除臭法有机肥发酵气体处理项目

    有机肥发酵气体通过生物滤塔除臭法对发酵后的气体进行收集处理,有机肥发酵气体处理工艺有化学洗涤法、生物除臭法,化学洗涤设备喷淋塔、洗涤塔、除臭喷淋塔等,生物除臭设备有生物除臭塔、生物滤塔、生物滤池除臭等,配套设备有玻璃钢收集管道、风机、玻璃钢排空管等。有机肥发酵气体通过生物滤塔除臭法对发酵后的气体进行收集处理,生物滤塔的尺寸有两种计算方法,一种是根据停留时间来计算生物除臭塔的体积大小(一般选取的停留时间为60s(不能小于30s)这个要根据废气中物质的浓度与要求来确定);另一种是...

    20247-4
    查看详情
  • 沼气脱硫装置氧化铁干法脱硫

    沼气是一些有机物质(如秸秆、杂草、树叶、人畜粪便等废弃物)在一定的温度、湿度、酸度条件下,隔绝空气(如用沼气池),经微生物作用(发酵)而产生的可燃性气体。在沼气的这些组成成分中,硫化氢气体即H2S,本身具有臭味,而且对人体有害,并且能溶于水形成氢硫酸,对沼气设备也会产生腐蚀性,所以在利用沼气或者进行燃烧排放前需要利用相关设备尽可能地去除硫化氢。这一步处理就被称为沼气脱硫。沼气的脱硫原理可以分为化学吸收法(湿法脱硫)、干法脱硫、生物脱硫法1、化学吸收法是利用溶剂与硫化氢发生化学...

    20246-25
    查看详情
  • 玻璃钢喷淋塔与玻璃钢洗涤塔的对比分析

    玻璃钢喷淋塔和玻璃钢洗涤塔都是常见的环保设备,主要用于处理工业生产过程中排放的废气。尽管它们在外观和结构上有相似之处,但在工作原理、使用场景以及应用效果等方面存在显著的差异。本文将深入探讨这两种设备的技术特点,并进行对比分析。玻璃钢喷淋塔玻璃钢喷淋塔是一种常用的化学废气处理设备,主要用于去除工业废气中的有害气体。它由玻璃钢材料制成,具有耐腐蚀、耐高温、耐磨损等优点,广泛应用于化工、电子、医药等行业。工作原理:玻璃钢喷淋塔的工作原理是通过将废气从底部引入塔体内,并在塔体内与喷淋...

    20246-25
    查看详情
  • RTO焚烧废气经降温塔、碱洗塔、水洗塔处理后通过烟囱排放至大气

    RTO焚烧废气经降温塔、碱洗塔、水洗塔处理后通过烟囱排放至大气,废气预处理可包括粉尘处理和净化处理。粉尘处理可采湿式除尘、布袋除尘器等设备,将废气中的固体颗粒物处理。净化处理可使用活性炭吸附装置或湿式废气处理系统进行处理。降温塔、碱洗塔、水洗塔是一种用碱洗液对废气中的酸性成分进行吸收和中和的方法。碱洗塔主要由塔筒、喷淋系统、填料层和废波收集器等组成。当酸性废气进入碱洗塔时,先通过喷淋系统均匀地喷洒碱洗液,将酸性成分溶解到液相中。碱洗液一般使用碱性溶液,如NaOH溶液。酸性成分...

    20246-21
    查看详情
  • 二级活性炭吸附装置注塑废气收集处理

    二级活性炭吸附装置注塑废气收集处理,废气经由玻璃钢收集管道进行集体收集,通过离心风机将废气送入二级活性炭吸附装置,经过处理后的废气通过排空管排入大气。二级活性炭吸附装置每台设有2个碳箱,分别由螺栓固定在吸附装置外壳上,更换活性炭时先卸掉螺栓;根据废气浓度而定,将旧的活性炭拿出,避免过大的振动和用力,以免弄碎活性炭掉入二级活性炭吸附装置内部,安装新碳时同样要避免以上情况,要平整紧密的安放。二级活性炭吸附装置技术要求:1)活性炭吸附装置入风管与排风管,应不大于或小于设备出入法兰口...

    20246-11
    查看详情
  • 碱液喷淋塔中和釜酸雾处理

    碱液喷淋塔中和釜酸雾处理经碱液喷淋塔处理后由排气筒排放,配套离心风机、水泵、电控系统及其他。玻璃钢喷淋塔采用酸碱洗涤为主的废气处理工艺。即对各个臭源构筑物产生的臭气加盖密封收集后,通过风机将集中收集的臭气先吸入碱液喷淋塔进行洗涤,处理的气体中的酸性气体后通过15m高空排放到大气中。中和釜酸雾碱液喷淋塔流程图:碱液喷淋塔中和釜酸雾运转步骤:(1)开启供水阀门,注入清水,并关闭排水阀,让清水溢流口溢出2-3分钟后,再开启排水阀,排出原注入之清水,并清洁洗涤塔内部水池。2)打开供水...

    20245-30
    查看详情
  • GRP一体化预制泵站对水利行业的重要性分析

    GRP一体化预制泵站作为一种高效且多功能的水处理设备,在现代水利工程中扮演着重要角色。GRP一体化预制泵站的工作原理GRP一体化预制泵站的工作原理主要基于自动控制和水泵增压技术。当自来水压力低于设定水压时,微机会自动控制变频泵启动,通过增流器内的水进行补偿,由设备增压向用户供水,直到实际水压达到设置水压。这一过程中,变频泵的转速会根据用水压力的变化自动调节,以实现稳定的水压供应。GRP一体化预制泵站的特点不堵塞:GRP一体化预制泵站采用杂质和污水分离技术,水泵的叶轮不接触杂物...

    20245-29
    查看详情
  • 污水处理厂生物滤池装置、离心风机、酸洗塔

    污水处理厂生物滤池装置、离心风机、酸洗塔、玻璃钢收集管道、排气筒、自控系统,污水处理厂生物除臭装置多用于污水厂、畜牧、食品加工厂等。生物滤池装置适用领域:1、垃圾处理过程的堆肥、填埋、焚烧发电、垃圾渗滤液调节池、垃圾中转站、垃圾堆肥;2、污水处理厂的排污泵站、进水格栅、嚗气沉沙池、初沉池,污泥脱水车间;3、涂料与喷漆、炼焦、化学制药、橡胶塑料、油漆涂料、印染皮革、染料、石油化工、制鞋厂、印刷厂、造纸厂、牲畜养殖、饲料加工、粪便处理和等恶臭气体与废气的净化和处理。污水处理厂离心...

    20245-29
    查看详情
  • 活性炭吸附装置车间废气处理

    活性炭吸附装置车间废气处理设备二级活性炭吸附塔塔由上箱体、下支架、工作爬梯、平台护栏和卸料装置四部分组成。活性炭吸附装置设有2个碳箱,分别由六角螺栓固定在吸附装置外壳上,更换活性炭时先卸掉六角螺栓。活性炭一般使用3-6个月需要更换(可根据废气浓度而定),将旧的活性炭一次拿出,避免过大的振动和用力,以免弄碎活性炭掉入设备内部(难以清理),安装新炭时同样要避免以上情况,要平整紧密的安放。车间废气处理设备二级活性炭吸附塔分类:从外形:方形卧式、圆形立式;从介质:废气处理、水处理;从...

    20245-7
    查看详情
共 614 条记录,当前 11 / 52 页  首页  上一页  下一页  末页  跳转到第页 
18931636799
欢迎您的咨询
我们将竭尽全力为您用心服务
85531818
关注微信
版权所有 © 2026 枣强县润和环保设备有限公司  备案号:冀ICP备16022327号-1
技术支持:环保在线  管理登陆  sitemap.xml